关于
公司介绍
主要客户
设计团队
项目
城市设计
综合体
城市更新
写字楼、产业园
商业零售
酒店、度假村
居住社区
文化建筑
教育设施
医疗康养
体育建筑
市政设施
专项
规划
室内设计
BIM
绿色建筑
TOD
新闻
联系
EN
EN
Cendes
>
项目
>
居住社区
>
成都观澜东著
成都观澜东著
四川,成都
客户:
成都开元锦澜置业有限公司
规模:
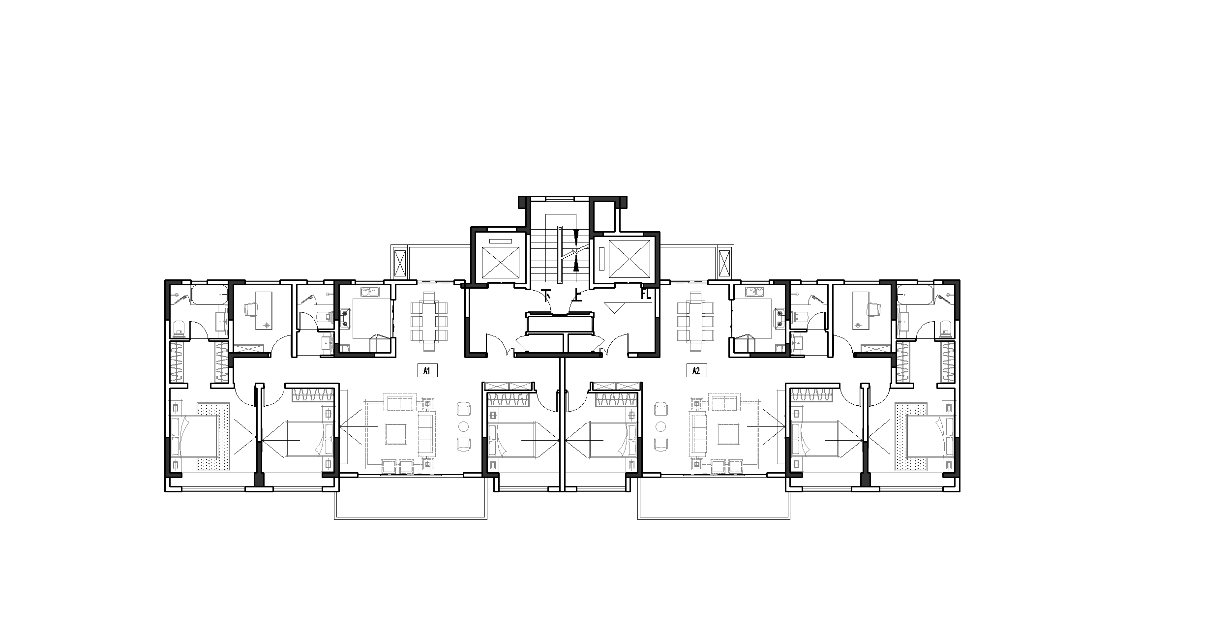
129,636
m
2
时间:
2023
建筑设计:华图山鼎设计股份有限公司
项目董事:林升
设计团队:黄强,陈磊,程沛,廖飞,文学军,任红艳,陈凤,江增源,黄可,赵攀宇,陈凤莲,应超,战祖弘,何新程,付饶,杨文武,李祥龙,张圩,秦绪伟,李初兰,佟超
景观设计:四川景度环境设计有限公司
公园西侧300米处——观澜东著,依园而建,将生活泊于水岸。Cendes为“心之所向者”设计了13万方的高层立体空间形态。居住者可尽享大自然的纯真“野“味儿。清风徐徐,碧波荡漾,飞鸟划过水面,感受自然带给我们的纯净、浪漫与内心的波澜不惊。
项目图库
更多
居住社区
成都观澜东著
四川,成都 2023
融创未来壹号
山东,济南 2020-2023
德阳美信国际花园城
四川, 德阳 2018-2023
西安合能合悦华府示范区
陕西,西安 2019
科伦坡港口城示范区
斯里兰卡,科伦坡 2021-2022
关注我们的微信
用微信扫一扫右侧的二维码,立刻关注我们的微信
分享此页面
扫一扫右侧的二维码,将本页分享给您的好友或朋友圈吧
如对网站文字、图片等内容有任何意见或疑问,请联系: webfeedback@cendes.design