关于
公司介绍
主要客户
设计团队
项目
城市设计
综合体
城市更新
写字楼、产业园
商业零售
酒店、度假村
居住社区
文化建筑
教育设施
医疗康养
体育建筑
市政设施
专项
规划
室内设计
BIM
绿色建筑
TOD
新闻
联系
EN
EN
Cendes
>
项目
>
酒店、度假村
>
成都新津城市名人酒店
成都新津城市名人酒店
四川,成都
客户:
成都荣望酒店有限公司
规模:
58,000
m
2
时间:
2009
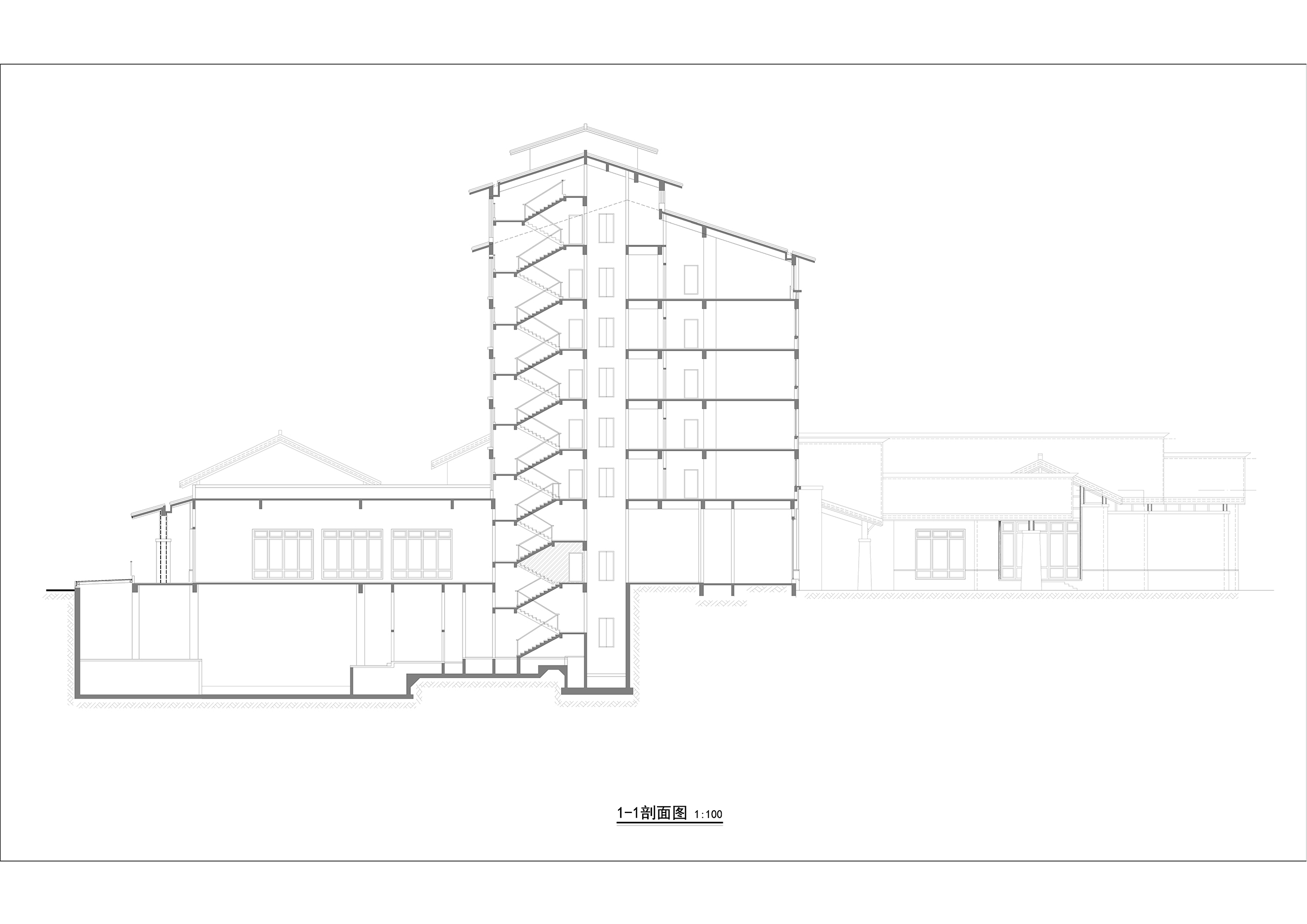
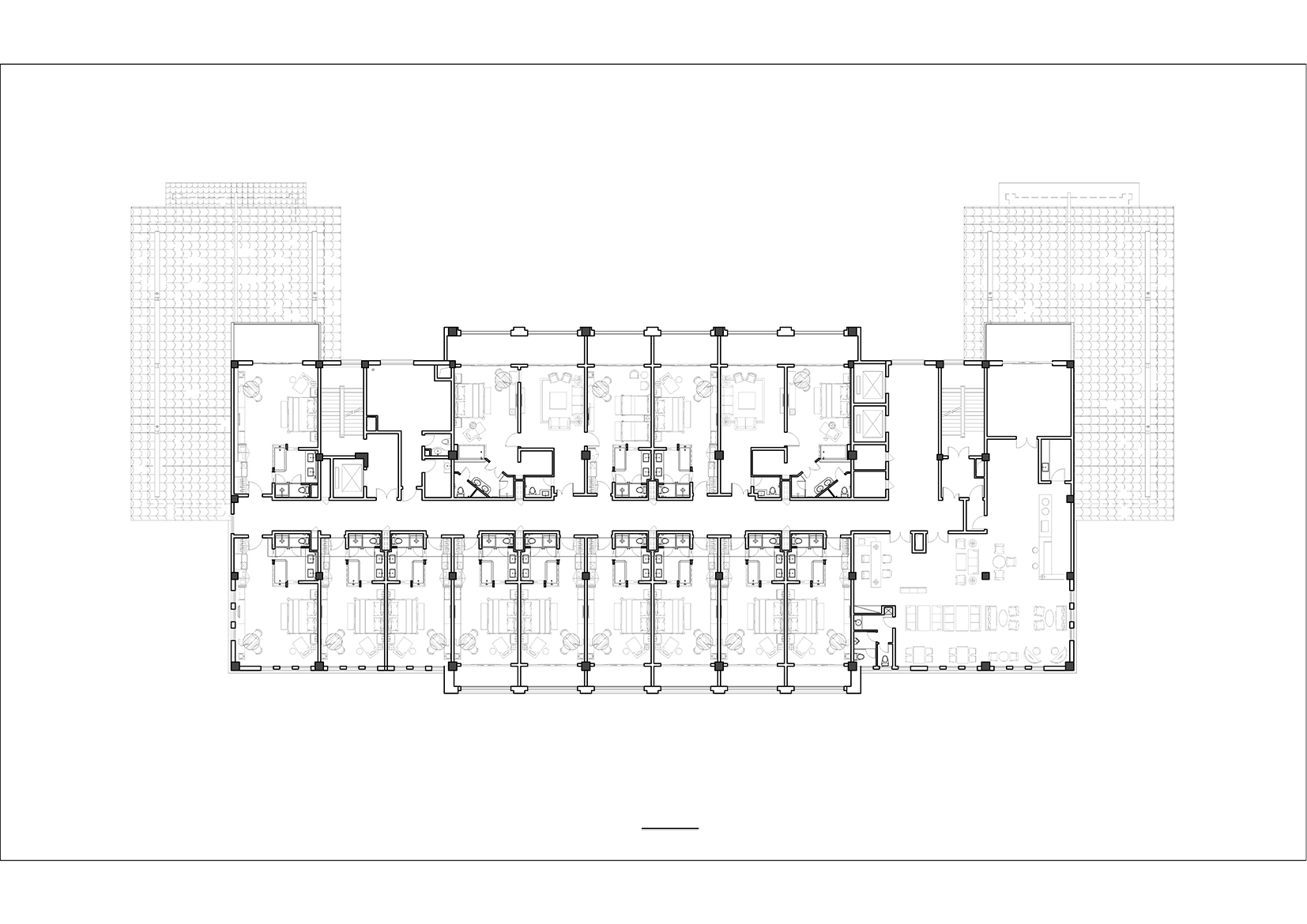
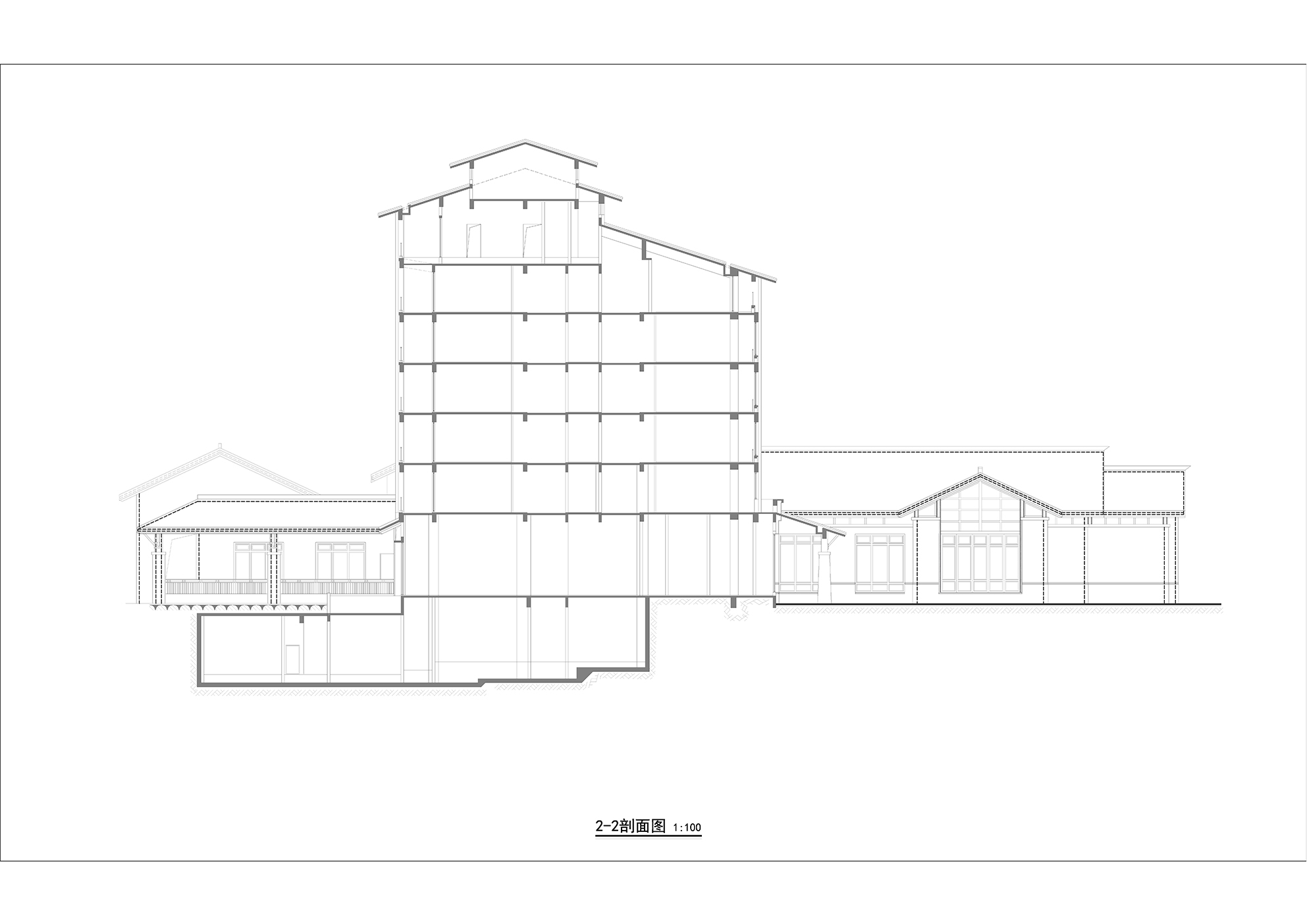
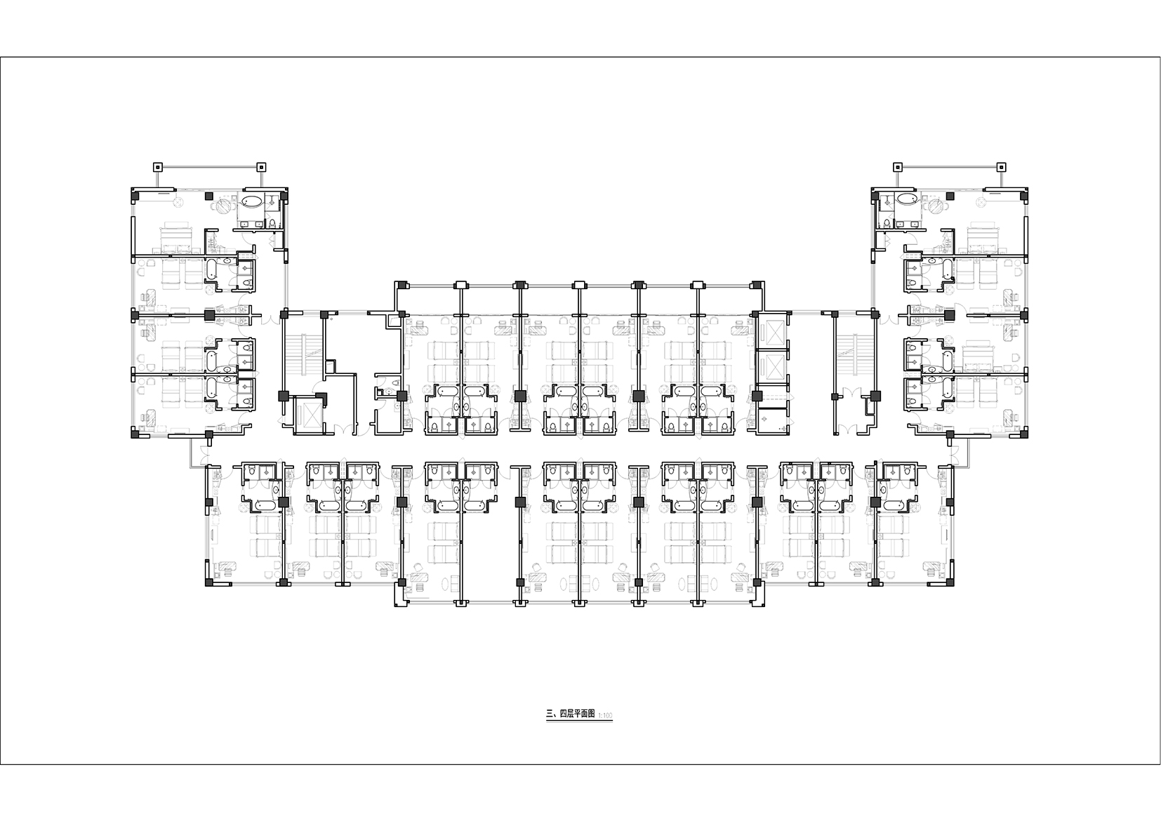
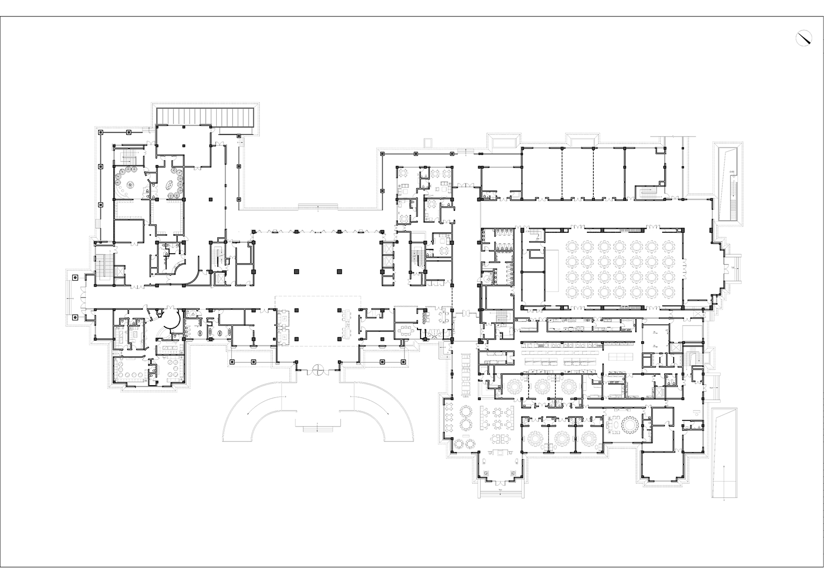
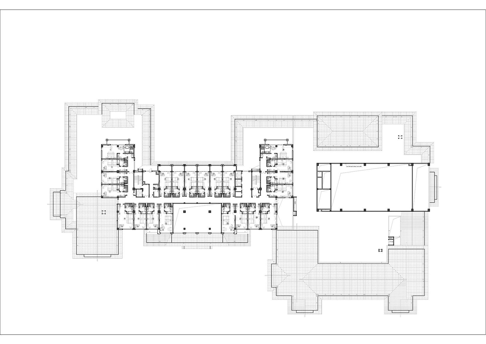
项目位于成都新津开发新区,是按国际五星标准设计的会议型酒店。
项目是集商务会议,精品餐饮,高档娱乐,豪华客房等多种功能为一体的高标准五星级酒店,酒店提供面积不小于50㎡的高标准客房120余间,极大得弥补了目前该区域缺乏高星级酒店的市场空缺。
建筑布局和形态塑造借鉴四川当地建筑的精髓,充分体现新津的文脉特征和风土人情为当地竖立高标准的豪华酒店建筑标杆,成为当地重要的城市配套节点。
项目图库
更多
酒店、度假村
眉山东坡岛·凯悦酒店
四川,眉山 2018
遂宁大英温德姆酒店
四川,遂宁 2019
成都英迪格酒店
四川,成都 2014
维也纳国际酒店
四川,成都 2015
乐山福朋喜来登酒店
四川,乐山 2023
关注我们的微信
用微信扫一扫右侧的二维码,立刻关注我们的微信
分享此页面
扫一扫右侧的二维码,将本页分享给您的好友或朋友圈吧
如对网站文字、图片等内容有任何意见或疑问,请联系: webfeedback@cendes.design