关于
公司介绍
主要客户
设计团队
项目
城市设计
综合体
城市更新
写字楼、产业园
商业零售
酒店、度假村
居住社区
文化建筑
教育设施
医疗康养
体育建筑
市政设施
专项
规划
室内设计
BIM
绿色建筑
TOD
新闻
联系
EN
EN
Cendes
>
项目
>
综合体
>
合肥滨湖·东方汇
合肥滨湖·东方汇
安徽,合肥
客户:
安徽德恒投资有限公司
规模:
162,320
m
2
时间:
2015-2018
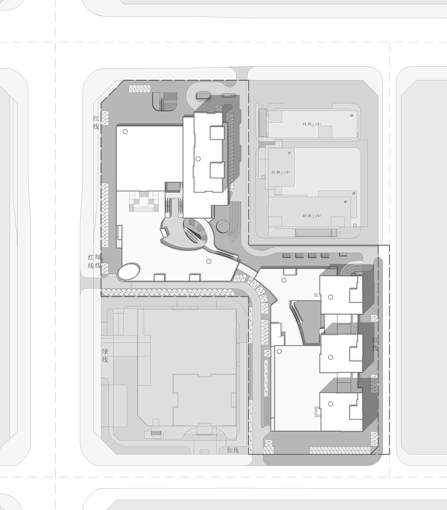
项目位于合肥市滨湖区西藏路以东、杭州路以南,坐落于合肥滨湖新区国际金融后台服务中心。规划设计目标为打造多功能复合、充满朝气和活力的都市商业综合体。
从土地利用和土地使用方面综合考虑,在商业的主导功能外,引入酒店、办公、步行中心广场、餐饮、娱乐等多种城市功能,补充并丰富该地区的功能类型。注重整体性,从商业本质、地理环境各方面着手,注重对用地特质的挖掘与利用,使滨湖“东方汇”项目成为合肥市一个极具现代品味、时尚年轻、高效科学的都市商业综合体及本区域商业标杆。
项目图库
更多
综合体
成都上海东韵
四川,成都 2017
成都锦江花卉市场
四川,成都 2019
菏泽中北新天地
山东,菏泽 2012-2015
陇南新天地
甘肃,陇南 2016
合肥滨湖·东方汇
安徽,合肥 2015-2018
关注我们的微信
用微信扫一扫右侧的二维码,立刻关注我们的微信
分享此页面
扫一扫右侧的二维码,将本页分享给您的好友或朋友圈吧
如对网站文字、图片等内容有任何意见或疑问,请联系: webfeedback@cendes.design